Bethel UMC

Cemetery Layout

This page provides access to scanned images of several charts of Bethel Cemetery created by Mac McElvar.
Click on one of the images below to see a larger image of that chart.


Plot Map of
Sections 1-2-3

Barineau Family Plot
in Section 2

Plot Map of Sections 4, 5

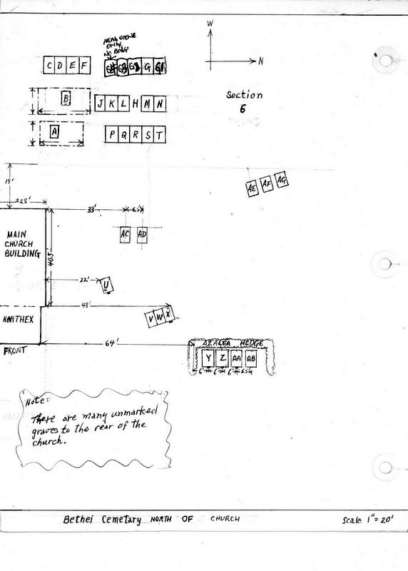
Plot Map of Section 6
North of Church

Click here to see a PDF booklet containing copies of the charts.